Fahrendelle

2011-2012

Erweiterung von einem 1- in ein 2-Famlienhaus

80m² Anbau an das bestehende 60er Jahre Haus

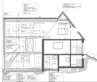
Herausforderung waren die Höhenunterschiede am Hanggelände

 

Schnitt

Der Bauherr wollte an dem Elternhaus einen Anbau zu Wohnzwecken errichten. Da das Gerlände starke Hanglage aufweist, gab es hier einige Probleme mit der Entwässerung.

Grundriss

Weiterhin war nach §34 die Bautiefe auf dem Grundstück ausschlaggebend für den Entwurf.

Ausführungsplanung

Das Gebäude wurde nach der aktuellen ENEV errichtet. Einzig die Sohle wurde in Niedrigenergiestrandard ausgeführt, um Nachhaltigkeit zu gewährleisten.


Oliver Schoop

Handy: 01577 273 19 07

Holzkampstr. 8a , 58453 Witten